квартира в сданном доме
| Населенный пункт | Краснодар |
|---|---|
| Улица | улица Дальняя |
| Номер дома | 8к1 |
Описание
| Сведения о недвижимости | |
|---|---|
| ID | 2027 |
| Ремонт | Требует ремонта |
| Балкон | Лоджия |
| Доля в квартире | Нет |
| Онлайн показ | могу провести |
| Статус Недвижимости Авито | Квартира |
| Право собственности | Посредник |
| Тип парковки | Подземная |
| Способ связи avito | По телефону и в сообщениях |
| Апартаменты | Нет |
| Узаконена ли планировка | Есть |
| Есть ли право собственности | Есть |
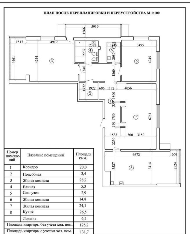
| Комнат в квартире | 3 |
| Площадь, кв.м. | 130 |
| Жилая площадь | 45 |
| Площадь кухни, кв.м. | 25 |
| Этаж | 17 |
| Этажность | 24 |
| Материал стен | Монолитный |
| Стоимость | 31 000 000 руб. |
Вся недвижимость
Стоимость - 31 000 000 руб.
Цена кв.м. - 238 462 руб.
Сумма переплаты: 0
Сумма общая: 0
Ежемесячный платеж: 0










