Эксклюзивное предложение
| Населенный пункт | Краснодар |
|---|---|
| Улица | улица Совхозная |
| Номер дома | 1к1 |
Описание
Объект - #1714
Планируете купить квартиру в Краснодаре?
ЖК СЕДЬМОЙ КОНТИНЕНТ на улице Совхозная. Комплекс расположен в Фестивальном микрорайоне. Дом монолитно-кирпичный с использованием витражного остекления, что придаёт высоткам футуристический вид.
Закрытая территория комплекса. Подземный паркинг с возможностью спуска на лифте. Квартира расположена на 22 этаже.
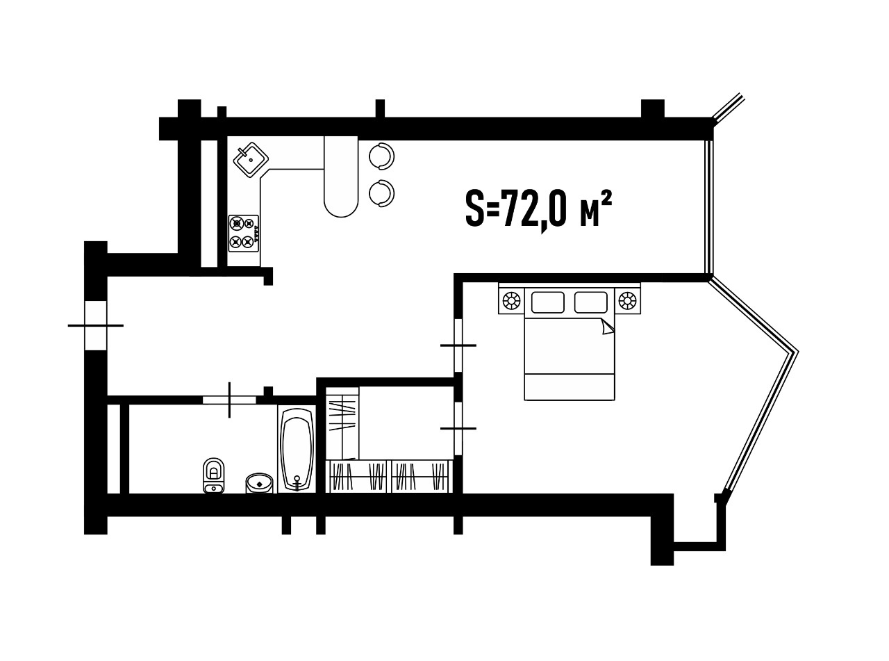
Планировка: общ. S=72 кв. м, 1 изолированная комната и кухня-гостиная, с/у, оборудованная гардеробная комната. Высота потолков 2,90 м. Состояние квартиры - выполнен дорогой качественный ремон с использование самых качественных материалов. В стоимость квартиры входит вся мебель, техника, текстиль и предметы интерьера.
Развитая инфраструктура: кафе, рестораны, фитнес клубы, торговые центры, лучшие клиники в городе, супермаркеты, магазины, аптеки, прогулочные зоны, двор, оборудованный детскими площадками, подземный и наземный паркинг, консьерж и охрана, камеры видео-наблюдения.
В шаговой доступности школы № 42, 80, 5, 29. Лицей № 64. Частная школа: Лидер. Гимназия № 18, 72, 33, 23, 54. и детские сады № 228, 202, 130 и др., Фестивальный сквер, Дальний бульвар, а также рядом находятся улицы Монтажников, Тургенева, ЖК Маршал ул. Гаражная, Рашпилевская, Стахановская, ЖК Двор с кораблём на ул. Яна Полуяна,
Рядом с домом весь необходимый общественный транспорт.
Квартиру можно купить в ипотеку или использовать материнский капитал
Остались вопросы? Звоните прямо сейчас.
НЕ ЗАБУДЬТЕ ДОБАВИТЬ ОБЪЯВЛЕНИЕ В ИЗБРАННОЕ ЧТОБЫ НЕ ПОТЕРЯТЬ.
Агентство недвижимости «ФЛЭТПРАЙМ» находится по адресу: город Краснодар, улица Пушкина 2 (пересечение с улицей Кубанская набережная)
| Сведения о недвижимости | |
|---|---|
| ID | 1714 |
| Ремонт | Дизайнерский |
| Балкон | Лоджия |
| Доля в квартире | Нет |
| Онлайн показ | могу провести |
| Статус Недвижимости Авито | Квартира |
| Право собственности | Посредник |
| Тип парковки | Подземная |
| Способ связи avito | По телефону и в сообщениях |
| Апартаменты | Нет |
| Узаконена ли планировка | Есть |
| Есть ли право собственности | Есть |
| Тип дома cian | Монолитный |
| Комнат в квартире | 2 |
| Площадь, кв.м. | 72 |
| Жилая площадь | 18 |
| Площадь кухни, кв.м. | 30 |
| Этаж | 22 |
| Этажность | 25 |
| Материал стен | Монолитный |
| Стоимость | 26 700 000 руб. |



























