Квартира с видом на реку
| Населенный пункт | Краснодар |
|---|---|
| Район города | Центральный внутригородской округ |
| Улица | набережная Кубанская |
| Номер дома | 31/1 |
Описание
Планируете купить квартиру в Краснодаре?
ЖК БРИГАНТИНА на улице Кубанская набережная. Комплекс расположен на берегу реки Кубань.
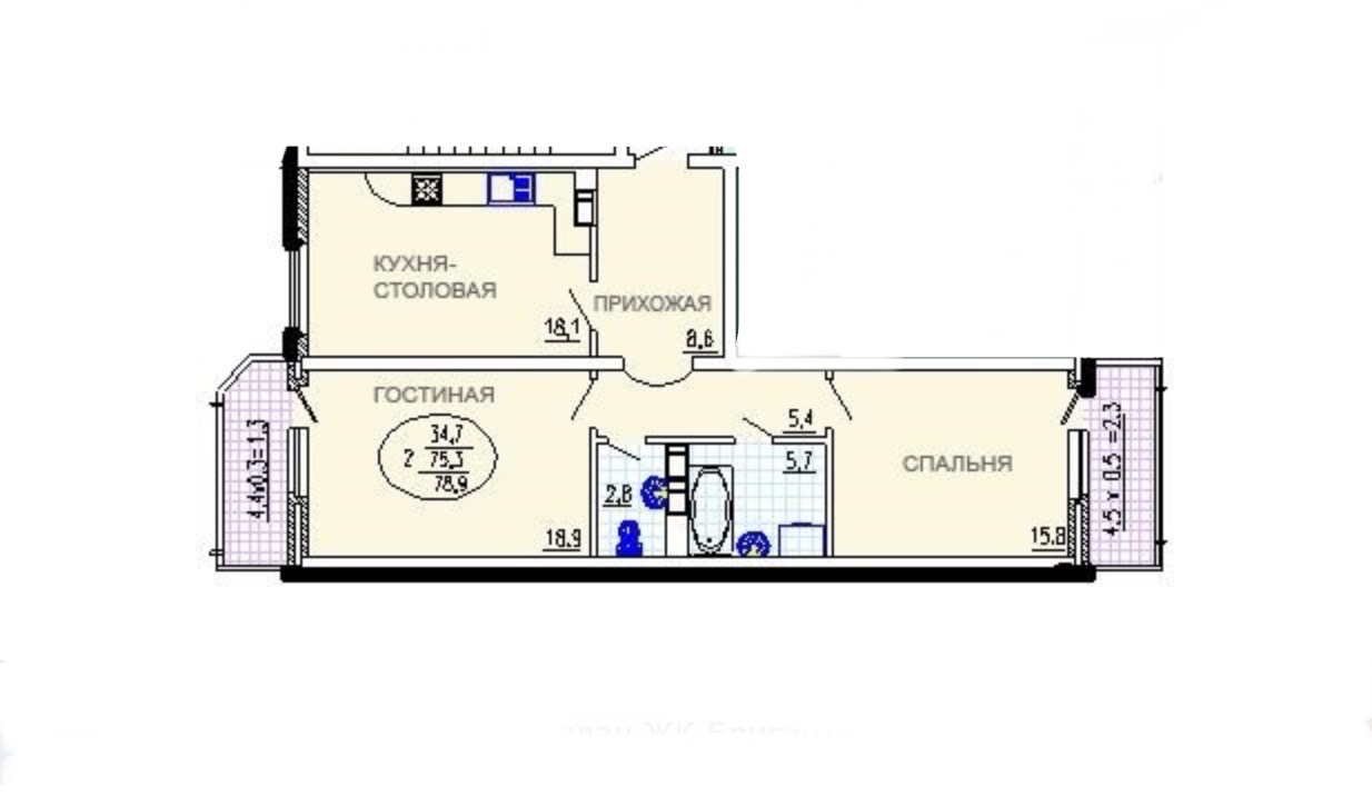
Квартира расположена на 7 этаже. Из окон открываются потрясающие виды на историческую часть города и реку Кубань. Планировка: общ. S=83 кв.м, 2 изолированные комнаты и кухня, с/у, просторная лоджия. Высота потолков 2.85 м. Состояние квартиры - квартира с ремонтом, мебелью и техникой.
Развитая инфраструктура: кафе, рестораны, фитнес клубы, торговые центры, лучшие клиники в городе, супермаркеты, магазины, аптеки, прогулочные зоны, двор, оборудованный детскими площадками, подземный и наземный паркинги, консьерж и охрана, камеры видеонаблюдения.
В шаговой доступности школы № 31; № 8. Гимназия № 36. Лицей № 48. Детские сады № 94, 19 и др., парк 30-летия Победы, набережная, Мост Поцелуев, а также рядом находятся улицы Пушкина, Постовая, Кондратенко и жилые комплексы Бригантина, Солнечный дом, Октябрьская, Гимназическая, Мира. До ЖК Большой на улице Красная и до ЖК Центральный на улице Буденного, торгового центра Галерея Краснодар и Театральной площади 10 минут на машине.
Рядом с домом весь необходимый общественный транспорт.
Квартиру можно купить в ипотеку или использовать материнский капитал
Остались вопросы? Звоните прямо сейчас.
НЕ ЗАБУДЬТЕ ДОБАВИТЬ ОБЪЯВЛЕНИЕ В ИЗБРАННОЕ ЧТОБЫ НЕ ПОТЕРЯТЬ.
Агентство недвижимости «ФЛЭТПРАЙМ» находится по адресу: город Краснодар, улица Пушкина 2 (пересечение с улицей Кубанская набережная).
| Сведения о недвижимости | |
|---|---|
| ID | 1576 |
| Ремонт | Евро |
| Балкон | Лоджия |
| Доля в квартире | Нет |
| Онлайн показ | могу провести |
| Статус Недвижимости Авито | Квартира |
| Право собственности | Посредник |
| Тип парковки | Подземная |
| Способ связи avito | По телефону и в сообщениях |
| Апартаменты | Нет |
| Узаконена ли планировка | Есть |
| Есть ли право собственности | Есть |
| Комнат в квартире | 2 |
| Площадь, кв.м. | 83 |
| Жилая площадь | 34 |
| Площадь кухни, кв.м. | 16 |
| Этаж | 7 |
| Этажность | 22 |
| Материал стен | Монолитный |
| Стоимость | 15 000 000 руб. |













